Wohnen im Altbau in der Gothaer Innenstadt
Daten
Objektnummer:4430/1/4
Stadtteil:Gotha-Mitte
Adresse:Jüdenstraße 34
99867 Gotha
Etage:2. Obergeschoss
Heizart:Etagenheizung Gas
Anzahl Zimmer:2
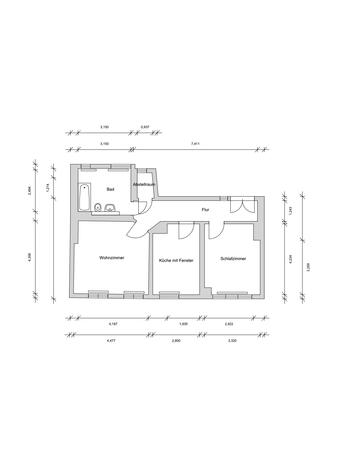
Wohnfläche:65,35 m2
Baujahr:1912
Frei ab:sofort
Kosten
Kaltmiete:425,00 €
Nebenkosten:134,00 €
Heizkosten:nicht in Nebenkosten enthalten
Gesamtmiete:559,00 €
Kaution:3 KaltmietenWeitere Daten
Art des Balkon:nicht vorhanden
Bad:mit Fenster und Badewanne
Waschmaschinenanschluss:im Bad
Abstellmöglichkeit:Abstellraum innerhalb der Wohnung und Keller
EA EnergieeffizienzklasseE
EA Kennwert137,20
EA ArtBedarf
EA Heizmedium Gas
Lage
Unser Einzelobjekt liegt mitten im Zentrum der Stadt und ist ideal für Jung und Alt. Zahlreiche Einkaufsmöglichkeiten befinden sich in unmittelbarer Nähe. Restaurants, Cafés, Ärzte, Apotheken, Friseure und viele andere Dienstleister sind bequem zu Fuß erreichbar. Auch das historische Stadtbad ist in 5 Minuten erreicht. Zu den Haltestellen des ÖPNV sind es nur wenige Gehminuten. In der Nähe sorgt der Stadtpark, rund um das Schloss Friedenstein und die Orangerie, für Entspannung und erholsame Spaziergänge. Auch die familienfreundliche Infrastruktur mit Schulen und Kitas machen die Wohngegend sehr attraktiv.Weitere Informationen
BeschreibungDas 1912 erbaute und 2001 liebevoll restaurierte Wohn- und Geschäftshaus ist ein architektonisches Kleinod im Zentrum unserer Residenzstadt Gotha. Im Erdgeschoss befinden sich 2 Gewerbeeinheiten, in den Obergeschossen 6 Wohnungen. Alle Wohnungen verfügen über Gas-Etagenheizungen. Die Heizungskosten sind nicht in den Nebenkosten enthalten. Zu jeder Wohnung gehört ein eigener Kellerraum.
Ausstattung
Diese interessant geschnittene 2-Raum-Wohnung lädt zum Wohlfühlen ein. Große Fenster bringen viel Licht in alle Räume, die Sie direkt vom Flur betreten. Die Wohnräume und die Küche sind nach Süd-West ausgerichtet und bieten viele Gestaltungsmöglichkeiten, um sich behaglich einzurichten. Die Küche mit Fenster hat einen Fliesenspiegel und Bodenfliesen und sie bietet genügend Platz, um eine kleine Essecke zu integrieren. Das große Badezimmer ist hell gefliest. Ein Abstellraum innerhalb der Wohnung sorgt für zusätzlichen Stauraum.Zurück zur Übersicht







