Gemütliche Wohnung gesucht? 2 Zi mit Wohnküche und Bad in der Oststadt
Daten
Objektnummer:3009/2/16
Stadtteil:Gotha-Ost
Adresse:Gallettistraße 4 a
99867 Gotha
Etage:2. Obergeschoss
Heizart:Etagenheizung Gas
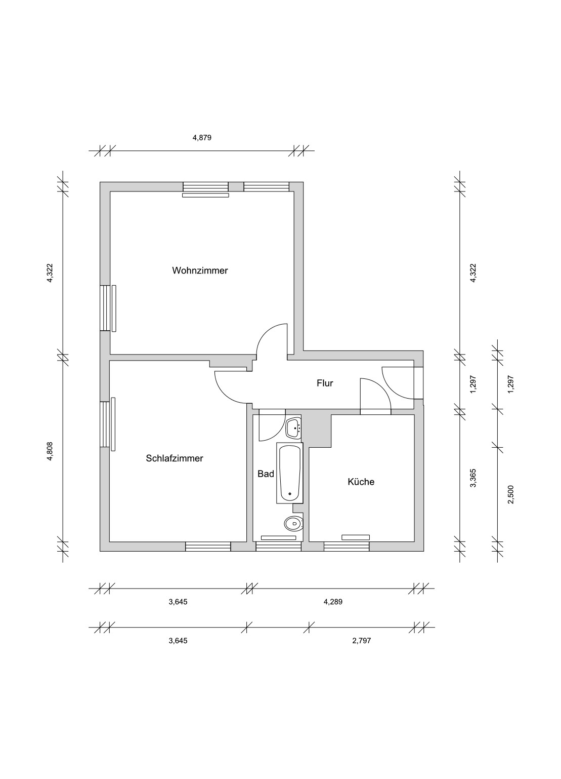
Anzahl Zimmer:2
Wohnfläche:57,07 m2
Baujahr:1954
Frei ab:sofort
Kosten
Kaltmiete:343,00 €
Nebenkosten:105,00 €
Heizkosten:nicht in Nebenkosten enthalten
Gesamtmiete:448,00 €
Kaution:3 KaltmietenWeitere Daten
Art des Balkon:nicht vorhanden
Bad:mit Fenster und Badewanne
Waschmaschinenanschluss:im Keller
Abstellmöglichkeit:Keller vorhanden
EA EnergieeffizienzklasseC
EA Kennwert95,10
EA ArtVerbrauch
EA Heizmedium Gas
Lage
Das Objekt liegt idyllisch in der Nähe vom Ostbahnhof. Obgleich der gewerblichen Bebauung ringsum, vermittelt die Begrünung der umliegenden Anlagen eine harmonische Atmosphäre. Einkaufsmöglichkeiten sind fußläufig erreichbar. Das nächste Nahversorgungszentrum erreichen Sie in mit dem PKW in 5 Minuten. Um die Innenstadt, den Hauptbahnhof oder andere Ziele zu erreichen, sind Haltestellen des öffentlichen Nahverkehrs in unmittelbarer Nähe vorhanden. Eine Kindertagesstätte, zwei berufsbildende Schulen und ein Reha-Sport-Zentrum befinden sich im Umfeld. Die Wohnanlage liegt verkehrsgünstig am östlichen Rand von Gotha, optimal für Pendler. Eine schnelle Anbindung zur B7 in Richtung Erfurt und zur BAB 73 ist gegeben. Zur aktiven Erholung bieten sich Spaziergänge und Radtouren in der Umgebung und zum Stausee Friemar an.Weitere Informationen
BeschreibungDas dreigeschossige Wohnhaus wurde 1954 in Massivbauweise errichtet. Die Wohnung wird über eine Gastherme in der Küche mit Wärme und Warmwasser versorgt. Zu jeder Wohnung gehört ein eigenes Kellerabteil. Die Außenanlagen werden von den Mietern gemeinschaftlich genutzt und bieten Möglichkeiten zur Erholung sowie der Wäschetrocknung. Vor dem Gebäude sind Pkw-Stellplätze vorhanden.
Ausstattung
Schön geschnittene 2-Raumwohnung am Rande von Gotha. Küche und Bad sind mit einem Fenster ausgestattet.Zurück zur Übersicht







