Wohnen in Gotha
Daten
Objektnummer:3111/2/14
Stadtteil:Gotha-Mitte
Adresse:Neumarkt 7
99867 Gotha
Etage:3. Obergeschoss
Heizart:Fernheizung
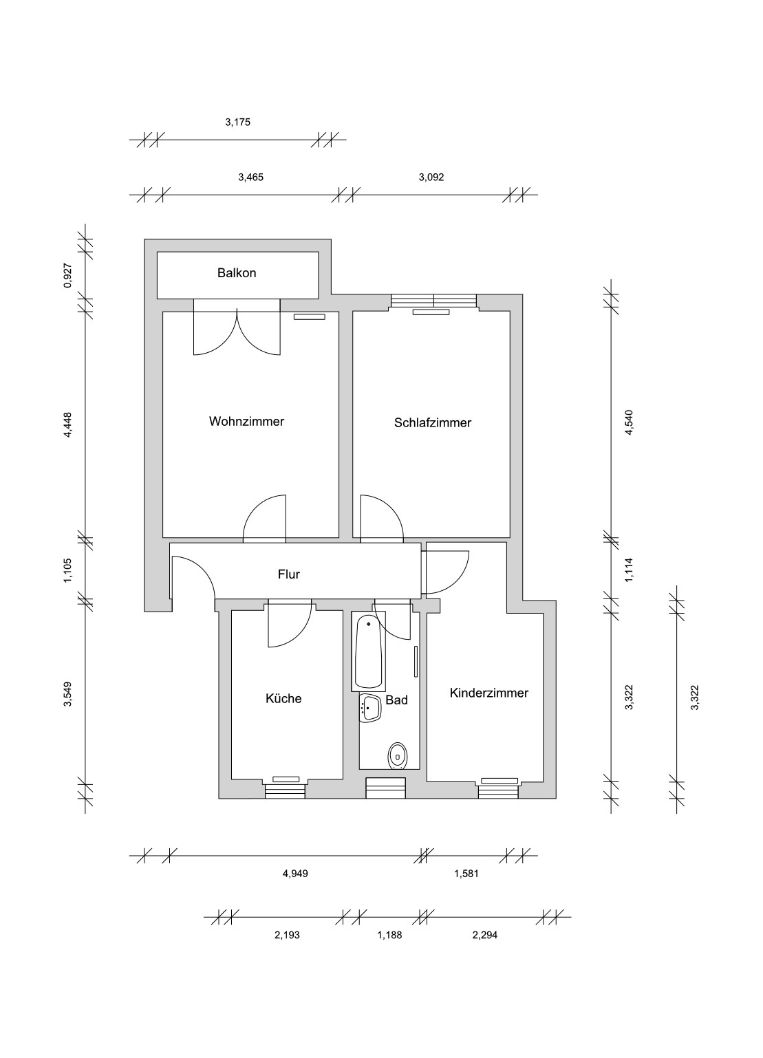
Anzahl Zimmer:3
Wohnfläche:56,25 m2
Baujahr:1969
Frei ab:sofort
Kosten
Kaltmiete:422,00 €
Nebenkosten:273,00 €
Heizkosten:in Nebenkosten enthalten
Gesamtmiete:695,00 €
Kaution:3 KaltmietenWeitere Daten
Art des Balkon:Balkon
Bad:mit Fenster und Badewanne
Waschmaschinenanschluss:im Bad
Abstellmöglichkeit:Keller vorhanden
EA EnergieeffizienzklasseD
EA Kennwert117,00
EA ArtBedarf
EA Heizmedium Fernwärme
Lage
Sie wohnen mitten in der City, haben kurze Wege zu Einkaufsmöglichkeiten, Kulturstätten und gastronomischen Einrichtungen. Bei Veranstaltungen sitzen Sie in der ersten Reihe. Zu den Haltestellen des ÖPNV sind es nur wenige Gehminuten. Grundschule, Kindertagesstätte und viele verschiedene Dienstleister sind fußläufig erreichbar. Der unweit gelegene Stadtpark mit Orangerie und Schloss Friedenstein llädt zu ausgedehnten Spaziergängen ein.Weitere Informationen
BeschreibungDas mehrgeschossige Wohnhaus wurde 1969 errichtet und 1995 saniert. Das Objekt wird über das Fernwärmenetz mit Wärme und Warmwasser versorgt. Zu jeder Wohnung gehört ein eigenes Kellerabteil. Den Mietern stehen zusätzlich ein Fahrradraum und ein Trockenraum zur Verfügung. Die Stellplatzanmietung am Objekt ist bei Verfügbarkeit möglich.
Zurück zur Übersicht







